126 + 126m² Fullbúið hús tvíhalla þak
-
Forsíða
- Fullbúin hús
- 126m² Fullbúið hús
- 126 + 126m² Fullbúið hús tvíhalla þak
Vörunúmer: 60900
126 + 126m² Fullbúið hús tvíhalla þak
Vörunúmer: 60900
126 + 126m² Fullbúið hús tvíhalla þak
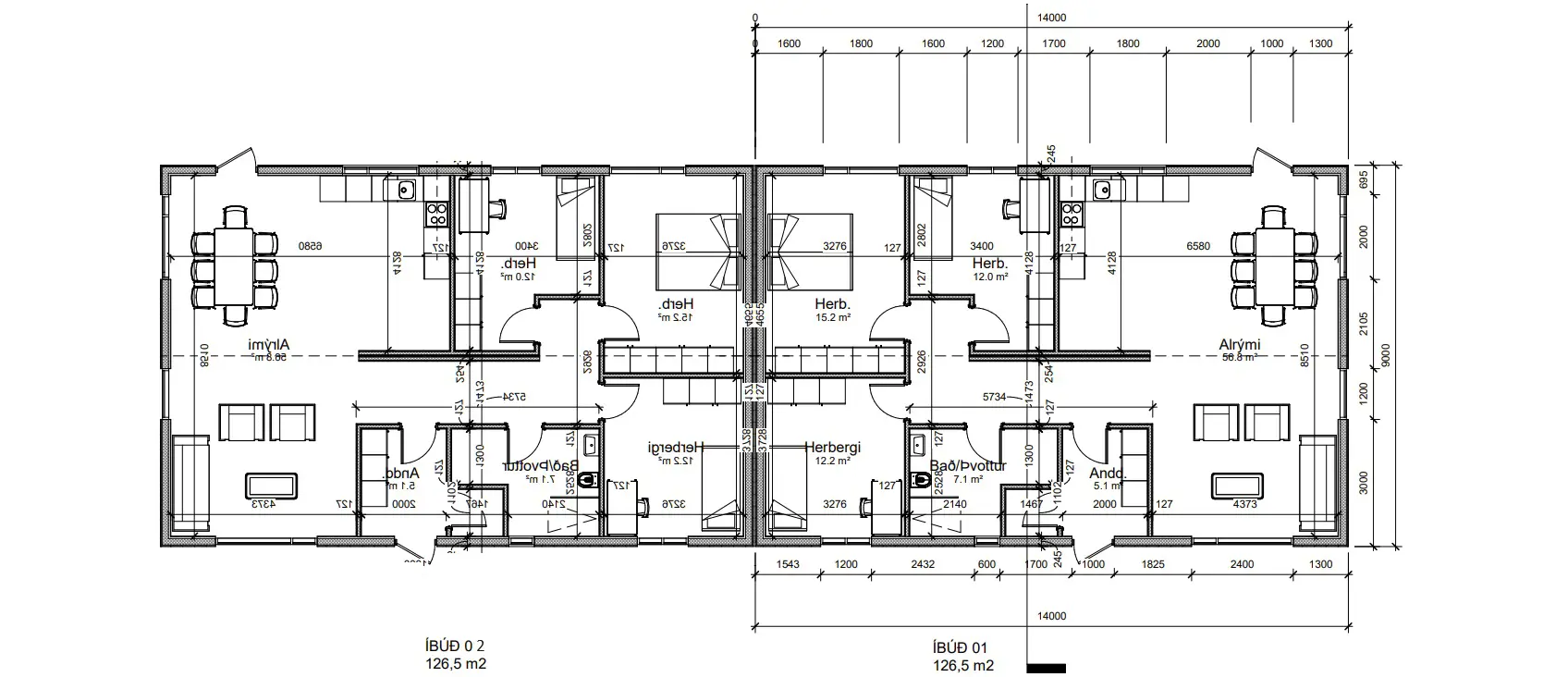
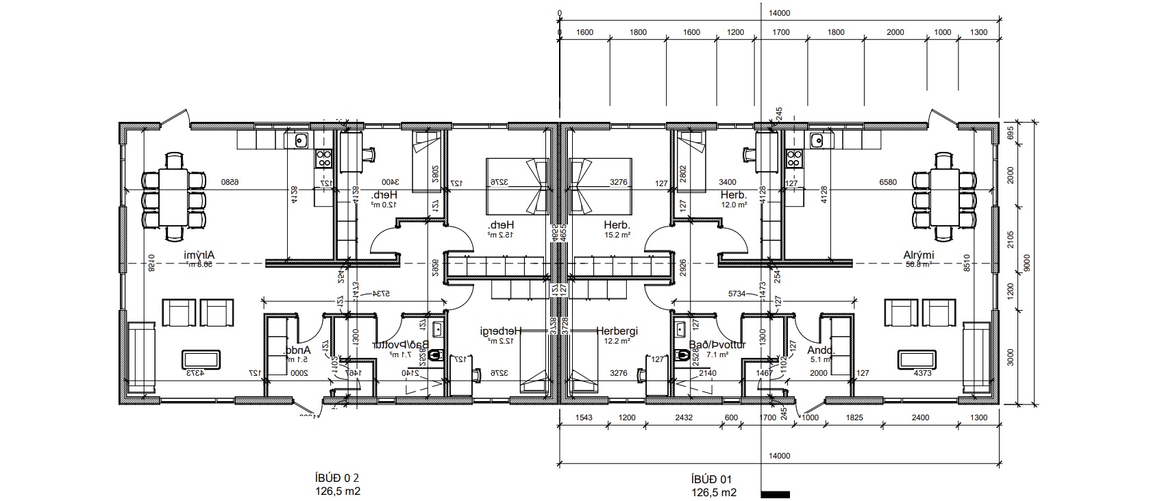
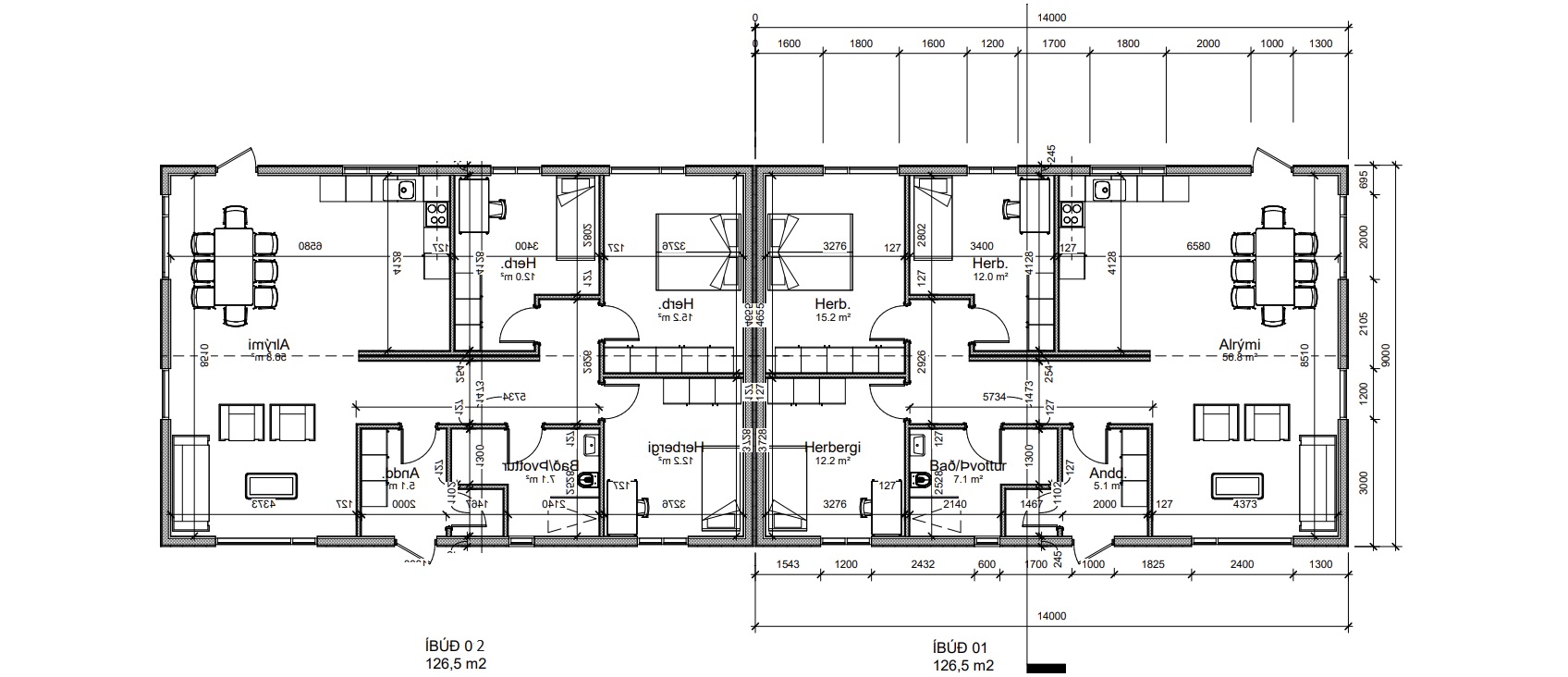
Fullgilt einbýlishús, húsið uppfyllir skilyrði algildrar hönnunar og öllum kvöðum íslenskrar byggingarreglugerðar. Gengið er inn í rúmgóða forstofu inn af henni er lítil geymsla en þar er einnig rafmagnstaflan og aðstaða fyrir hitaveituinntakið. Alrýmið (stofa/eldhús) er opið og bjart með mikilli lofthæð. Gólfsíðir gluggar eru í húsinu að framanverðu. Þrjú rúmgóð svenberbergi með góðu plássi fyrir skápa. Húsið afhendist með 5 eininga Knoxhult innréttingu frá Ikea með helluborði, bökunarofn og frístanandi ísskáp. Inn á baðherbergi er lítil innrétting, handklæðaofn, gólfsalerni og sturtuklefi einnig er pláss fyrir þvottavél og þurrkara. Hitakútur er 100 lítra og rafmagnsþilofnar inn í öllum rýmum. Ýmsar uppfærslur í boði, talið við sölumann.
Nánar
86.300.000
kr.
HARVIA LEGEND Sauna rafmagns 11kW
Forsteyptur sökkull -L4336xB200xH500
2.900.000 kr.
HARVIA LEGEND Sauna rafmagns 11kW
2.900.000 kr.
Hitaveituskel, 1600 lítra
459.900 kr.
107.900 kr.
14 daga skilaréttur er á öllum vörum.
Viltu dreifa greiðslum?
kr./mán
mánaða greiðsludreifing
% vextir - % lántökugjald (m.vsk) - kr. kostnaður á hverja greiðslu.
Heildarkostnaður: kr. - ÁHK %
Kjörin hér að ofan eru aðeins til viðmiðunar. Endanleg lánakjör verða reiknuð út þegar þú gengur frá kaupunum.
Sambærilegar vörur
Stuðningsvörur
Fylgiskjöl og vottanir